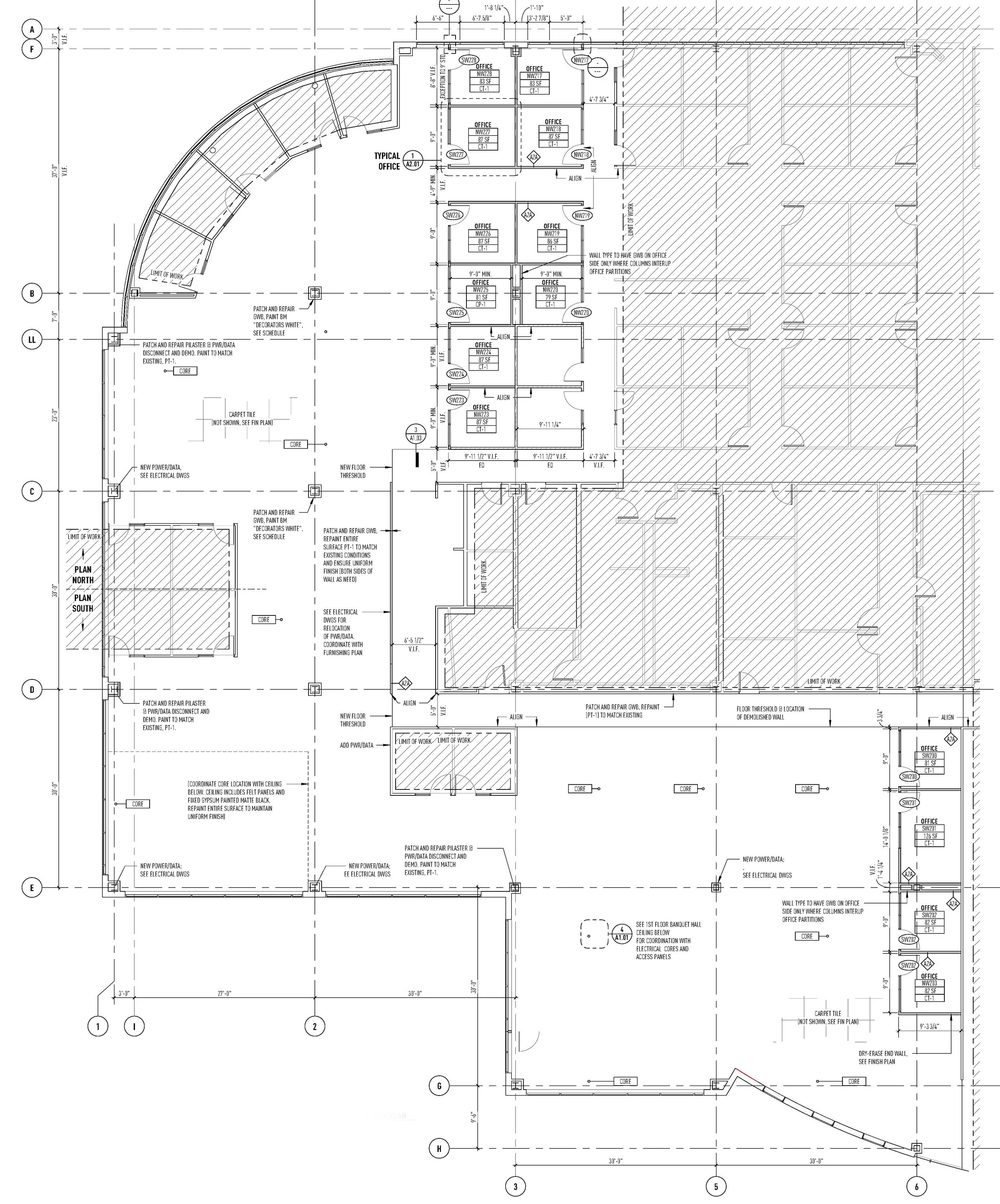
MathWorks Apple Hill 3 Second Floor Renovations

 
  • Natick, MA

    MathWorks

    August 2018

    • Interior workspace renovations of 10,000 sf

    • Offices for 70 people in closed and open office workstations

    • New interior finishes including repair of banquet hall ceiling

  • Interior renovations to MathWorks headquarters space embody the corporate mission to cultivate an enjoyable, vibrant, participatory, and rational work environment. New staff workspaces include 10 offices and 60 open office workstations. Glazed panels bring daylight to all employees and, with a focus on cost control, finishes conform to existing office standards. Scheduled and completed as a summer slammer, the construction phase involved no change orders.

Previous
Previous

MassDOT Rose Kennedy Greenway Maintenance Shed

Next
Next

MBTA System-Wide Assement + Wayfinding